





428 610 PLN
10 500 PLN/m²
SprzedażMieszkanie
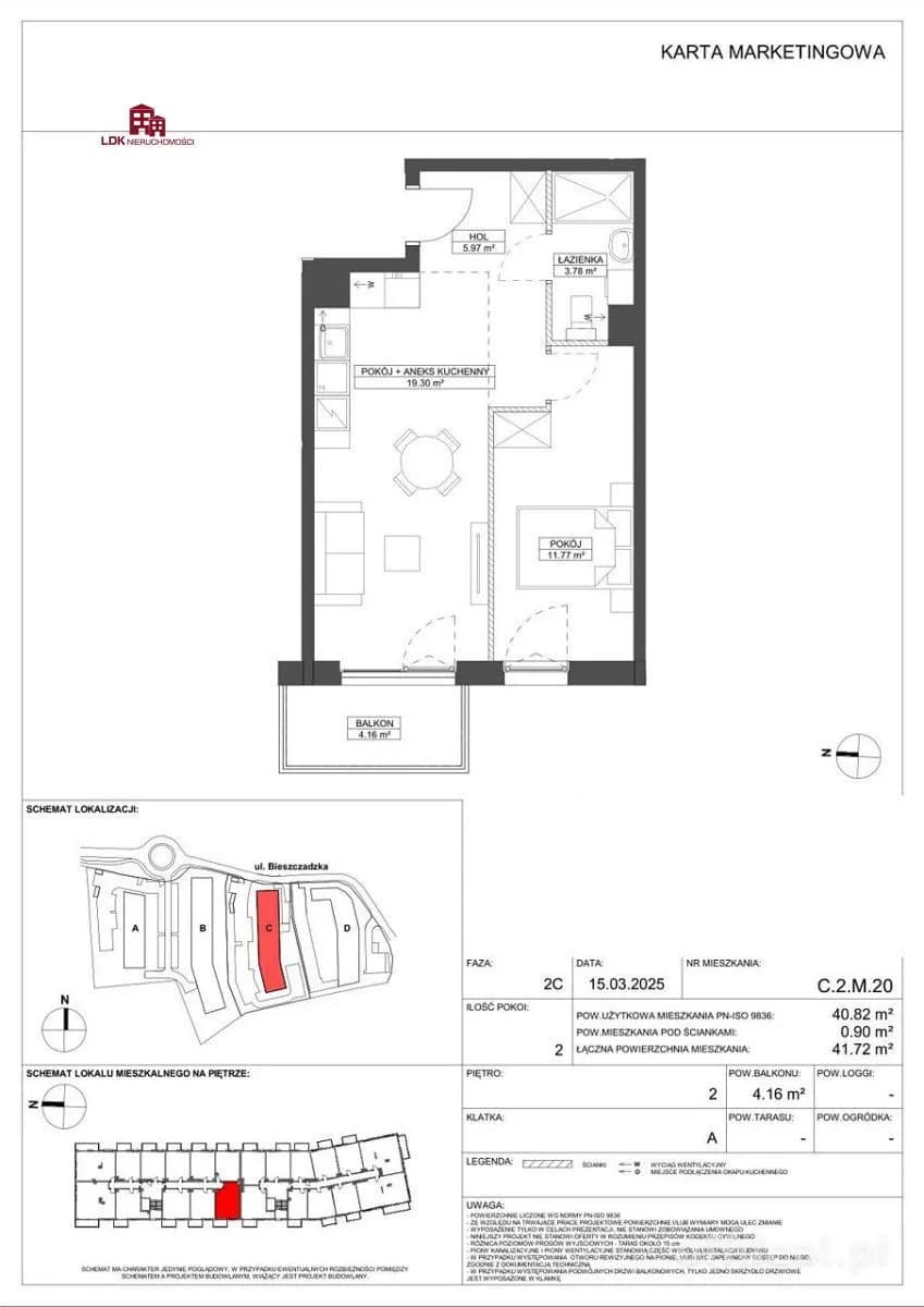
Nowoczesne mieszkanie 2-pokojowe – 40,82 m²
Gdynia • Wielki Kack • ul. Bieszczadzka
428 610 PLN
10 500 PLN/m²
Powierzchnia
40.8 m²
Pokoje
2
Piętro
Piętro 2/5
Rok budowy
2026
mieszkanie na sprzedaż w Gdynia - Wielki Kack
Powierzchnia
40.8 m²
Pokoje
2
Piętro
Piętro 2/5
Rok budowy
2026
- Ogrzewanie
- Gazowe
- Stan wykończenia
- Deweloperski
- Rynek
- Pierwotny
- Forma własności
- Własność
- Miejsca parkingowe naziemne
- Kuchnia
- Bez okna otwarta na salon
- Miejsca parkingowe podziemne
- Balkon
- Liczba sypialni
- 1
- Liczba łazienek
- 1
- Liczba toalet
- 1
Budynek i materiały
Budynek i materiały
- Rodzaj zabudowy
- Blok mieszkalny
- Winda
- Liczba wind
- 1
Informacje dodatkowe
Informacje dodatkowe
- Data dodania
- 13.10.2025
- Ostatnia aktualizacja
- 30.03.2026
Opis
Nowoczesne mieszkanie 2-pokojowe - 40,82 m²
Zielona okolica | Inteligentne technologie | Wysoki standard wykończenia
Oferujemy na sprzedaż funkcjonalne, 2-pokojowe mieszkanie o powierzchni 40,82 m², zlokalizowane na kameralnym, nowoczesnym osiedlu otoczonym terenami zielonymi. Inwestycja łączy wysoki standard architektury z rozwiązaniami smart home, zapewniając mieszkańcom komfort i bezpieczeństwo na co dzień.
Układ mieszkania i przestrzeń dodatkowa
Mieszkanie jest idealne dla singla, pary lub inwestora szukającego lokalu pod wynajem. Przestronny przeszklony balkon (lub ogródek - w przypadku lokali na parterze) doskonale sprawdzi się jako dodatkowa strefa wypoczynku.
Najważniejsze cechy inwestycji:
Smart home - inteligentne zarządzanie oświetleniem, urządzeniami elektronicznymi i systemem bezpieczeństwa
Szybki Internet - instalacje światłowodowe gwarantują najlepszą jakość połączenia
Ekologiczne oświetlenie LED z czujnikami ruchu w częściach wspólnych
Nowoczesne materiały - budynki wykonane z materiałów spełniających normy europejskie, objętych gwarancją
Antena TV naziemna i satelitarna na dachach budynków
Przyjazne dla rowerzystów - rozbudowana infrastruktura rowerowa, punkty naprawy, stojaki i wygodne chodniki
Miejsca postojowe:
Cena miejsca postojowego naziemnego (brutto): 22 000 zł
Cena miejsca w garażu podziemnym (brutto): 35 000 zł
Dostępne są zarówno miejsca zewnętrzne, jak i miejsca w hali garażowej z automatyczną bramą sterowaną pilotem. Dodatkowo, w okresie zimowym komfort zwiększa system podgrzewania rampy wjazdowej.
Mapa
ul. Bieszczadzka, Wielki Kack, Wielki Kack, Gdynia
Otwórz w Google MapsOpiekun oferty

Anna Piechowska
Pośrednik
Ldk Nieruchomości • Gdynia
Kontakt z agentem
Informacja o danych osobowych
Administratorem Twoich danych osobowych jest OffDeal Sp. z o.o. Dane podane w formularzu będą przetwarzane w celu obsługi Twojego zapytania dotyczącego oferty i kontaktu z agentem. Więcej informacji znajdziesz w Polityce prywatności oraz Regulaminie.
OffDeal Alert
Ta oferta nie jest idealna?
W OffDeal najlepsze oferty często pojawiają się zanim trafią na portale. Zostaw wymagania — wyślemy ofertę, gdy tylko będzie pasowała do Twoich parametrów szukania.
Podaj swoje wymagania — a my wrócimy z dopasowaniem.
Bez spamu. Dostajesz tylko dopasowane oferty, których nie ma na innych portalach, i kontakt do najlepszych agentów.


