SprzedażDom

Nowoczesny dom w zabudowie bliźniaczej | 136 m² |

Dobrzewino • wejherowski • ul. Dworska
979 056 PLN
7200 PLN/m²
Powierzchnia
136.0 m²
Powierzchnia działki
272.0 m²
Pokoje
5
Rok budowy
2024
Ogrzewanie
Gazowe
Stan wykończenia
Deweloperski
Rynek
Pierwotny
Forma własności
Własność
Media
Kanalizacja, Internet, Telewizja kablowa, Prąd
Garaż
Miejsca parkingowe naziemne
Ogrodzenie
Mieszane
Droga dojazdowa
Utwardzona gruntowa
Obecna zabudowa
Mieszkalna
Kuchnia
Z oknem otwarta na salon
Umeblowanie
Nie
Poddasze / strych
Taras
Ogród
Liczba sypialni
4
Liczba łazienek
2
Liczba toalet
2
Budynek i materiały
Rodzaj domu
Bliźniak
Materiał budynku
Gazobeton
Materiał dachu
Blacha
Typ dachu
Skośny
Rodzaj okien
Nowe PCV
Informacje dodatkowe
Data dodania
16.03.2026
Ostatnia aktualizacja
20.04.2026

Opis

Nowoczesny dom dwulokalowy 135,98 m² | garaż | duży ogród | blisko Trójmiasta

Na sprzedaż nowoczesny i funkcjonalny dom w zabudowie dwulokalowej, położony w spokojnej, zielonej okolicy z szybkim dojazdem do Trójmiasta. To idealna propozycja dla rodzin szukających komfortu, przestrzeni i prywatności.

Każdy lokal o powierzchni 135,98 m² posiada wydzielony, ogrodzony ogród, garaż oraz miejsce postojowe. Wjazd na posesję odbywa się przez bramę Hormann sterowaną pilotem.

Planowane zakończenie inwestycji: 31 maja 2026 r.

Najważniejsze atuty:
  • 135,98 m² funkcjonalnej powierzchni
  • 5 pokoi - idealne dla rodziny
  • garaż w bryle budynku z ogrzewaniem podłogowym
  • dodatkowe miejsce postojowe
  • ogrzewanie podłogowe w całym domu
  • duże przeszklenie HST w salonie
  • przygotowanie pod kominek narożny
  • prywatny, ogrodzony ogród
  • spokojna okolica + szybki dojazd do Trójmiasta
Układ pomieszczeń:

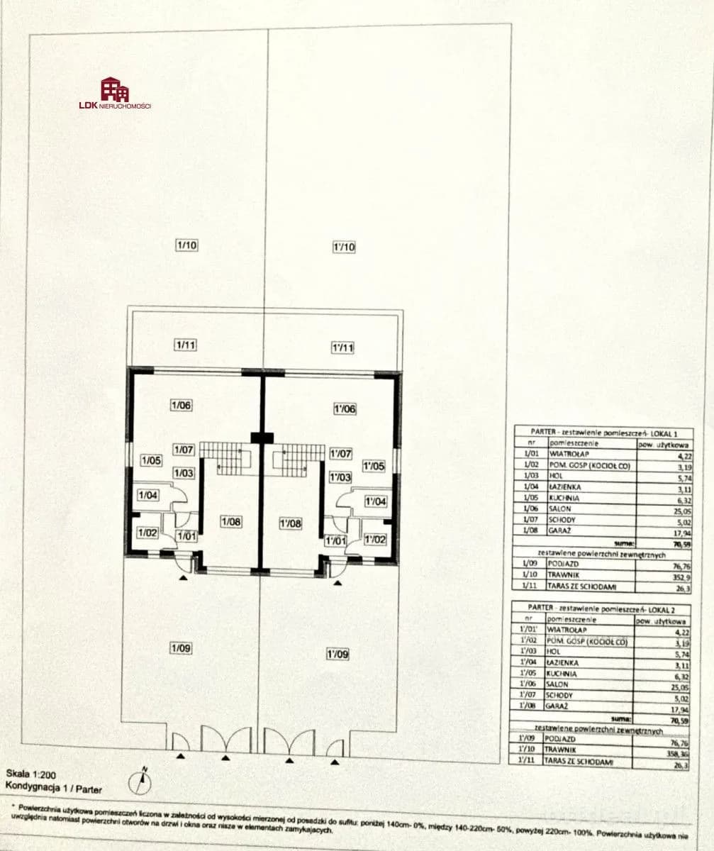
Parter - 70,59 m2

  • wiatrołap - 4,22 m²
  • kotłownia - 3,19 m²
  • hol - 5,74 m²
  • łazienka - 3,11 m²
  • kuchnia - 6,32 m²
  • salon - 25,05 m²
  • schody - 5,02 m²
  • garaż - 17,94 m2

Strefa dzienna z wyjściem do ogrodu.

Poddasze bez skosów - 65,39 m²:
  • hol - 7,37 m²
  • 4 pokoje (10,56 m² | 11,26 m² | 10,94 m² | 15,19 m²)
  • osobna garderoba - 4,13 m²
  • łazienka - 5,94 m²
Komfortowa strefa prywatna dla domowników - strych użytkowy około 40 m2.

Standard wykonania:
  • gniazda RTV/SAT w pokojach i salonie
  • instalacja domofonowa, okablowanie bez osprzętu
  • instalacja alarmowa, okablowanie bez osprzętu
  • dach pokryty blachą na rąbek
  • elewacja ocieplona styropianem
  • trzyszybowe okna PCV (antracyt)
  • drzwi antywłamaniowe RC2
  • przygotowane miejsce pod instalację kominka narożnego opalanego drewnem.

Instalacje:
  • ogrzewanie podłogowe w całym domu
  • indywidualny kocioł gazowy
  • przygotowanie pod alarm, domofon, RTV/SAT
  • wentylacja grawitacyjna / hybrydowa
  • przygotowanie pod kominek
Teren i otoczenie:
  • garaż z ogrzewaniem podłogowym + miejsce postojowe
  • prywatny ogród dla każdego lokalu
  • taras i chodniki z kostki brukowej
  • teren obsiany trawą + nasadzenia
  • pełne ogrodzenie

Lokalizacja:
  • ok. 12 min do Gdynia Dąbrowa
  • ok. 3 min do Trasy Kaszubskiej S6
  • przystanek autobusowy - 1 min
  • szkoła, przedszkole - 5 min
  • sklepy i usługi - w pobliżu

Umów się na prezentacje, zanim ktoś Cię uprzedzi.
Takie domy nie stoją długo puste.


Współpracujemy z doświadczonymi doradcami kredytowymi, dzięki czemu oferujemy naszym Klientom profesjonalne wsparcie w uzyskaniu finansowania dopasowanego do indywidualnych potrzeb.

Link z prezentacją nieruchomości:

https://www.instagram.com/reel/DWE_JHSiD-8/?utm_source=ig_web_copy_link

Mapa

ul. Dworska, wejherowski, Dobrzewino
Otwórz w Google Maps
Opiekun oferty
Anna Piechowska
Anna Piechowska
Pośrednik
Ldk Nieruchomości • Dobrzewino
Kontakt z agentem
Informacja o danych osobowych
Administratorem Twoich danych osobowych jest OffDeal Sp. z o.o. Dane podane w formularzu będą przetwarzane w celu obsługi Twojego zapytania dotyczącego oferty i kontaktu z agentem. Więcej informacji znajdziesz w Polityce prywatności oraz Regulaminie.
OffDeal Alert

Ta oferta nie jest idealna?

W OffDeal najlepsze oferty często pojawiają się zanim trafią na portale. Zostaw wymagania — wyślemy ofertę, gdy tylko będzie pasowała do Twoich parametrów szukania.

Podaj swoje wymagania — a my wrócimy z dopasowaniem.
Bez spamu. Dostajesz tylko dopasowane oferty, których nie ma na innych portalach, i kontakt do najlepszych agentów.